Questões do concurso:
Prefeitura de Bragança - PA - 2024 - IVIN - 2024 - Prefeitura de Bragança - PA - Técnico Imobiliário
limpar filtros
40 Questões de concurso encontradas
Página 1 de 8
Questões por página:
Questões por página:
Concurso:
Prefeitura de Bragança - PA
Disciplina:
Engenharia Civil
Na construção de uma loja comercial de 140,00m² de área construída, com previsão de conclusão da obra em 7 meses. O proprietário está analisando a aplicação dos recursos de execução da 1ª etapa da obra e o quadro abaixo é uma representação parcial do cronograma da obra. O valor total executado da obra em reais ao final de 1ª etapa:
Onde: Qn = Quantidade de serviço no mês n, em porcentagem; Mn = Valor do serviço no mês n.
Onde: Qn = Quantidade de serviço no mês n, em porcentagem; Mn = Valor do serviço no mês n.
Concurso:
Prefeitura de Bragança - PA
Disciplina:
Engenharia Civil
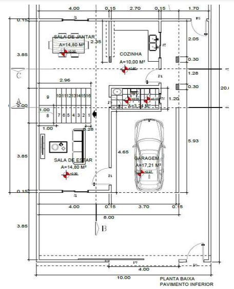
Na Planta Baixa é representada uma vista de cima de uma edificação, que possibilita ver todos os cômodos e suas respectivas medidas facilitando a execução da obra.
Analise as assertivas em relação à planta baixa da figura acima:
I. A planta baixa não apresenta garagem.
II. No projeto apresentado não existe área de serviço.
III. A cozinha não tem porta.
IV. A divisão interna da residência apresentada no projeto é da seguinte forma: garagem, sala de estar, bwc, sala de jantar, cozinha e escada.
Em relação às assertivas acima, pode-se afirmar:
Analise as assertivas em relação à planta baixa da figura acima:
I. A planta baixa não apresenta garagem.
II. No projeto apresentado não existe área de serviço.
III. A cozinha não tem porta.
IV. A divisão interna da residência apresentada no projeto é da seguinte forma: garagem, sala de estar, bwc, sala de jantar, cozinha e escada.
Em relação às assertivas acima, pode-se afirmar:
Concurso:
Prefeitura de Bragança - PA
Disciplina:
Engenharia Civil
Detalhes no desenho técnico como a espessura e o tipo de linhas utilizadas diferenciam os elementos representados e devem ser observadas para evitar interpretações equivocadas. Analise as assertivas acerca da espessura e tipo de linhas:
I. A linha contínua larga representa contornos e arestas visíveis.
II. A linha tracejada larga representa contornos e arestas não visíveis.
III. A linha traço ponto e estreita representa linha de centro.
Após a análise das assertivas, julgue-as:
I. A linha contínua larga representa contornos e arestas visíveis.
II. A linha tracejada larga representa contornos e arestas não visíveis.
III. A linha traço ponto e estreita representa linha de centro.
Após a análise das assertivas, julgue-as:
Concurso:
Prefeitura de Bragança - PA
Disciplina:
Engenharia Civil
O projeto hidráulico em uma edificação é ferramenta primordial no planejamento da distribuição dos pontos hidráulicos na obra, pois nele contém informações sobre a rede de alimentação, rede de distribuição, detalhes da caixa d’água e outros. Julgue as assertivas:
I. Na escolha da tubulação de hidrostática deve-se usar tubos de boa qualidade e que resistam a pressão hidrostática.
II. Caso a edificação tenha tubulações de amianto, o projeto deve prever a troca por tubulação de pvc, que é considerada uma prática ambientalmente correta.
III. O projeto deve apresentar o perfil isométrico da instalação hidráulica, que fornece detalhes como o diâmetro das tubulações e a quantidade e tipo de pontos hidráulicos.
IV. O projeto hidráulico só deve ser desenhado na escala de 1/75.
Após a análise das assertivas, indique a opção correta:
I. Na escolha da tubulação de hidrostática deve-se usar tubos de boa qualidade e que resistam a pressão hidrostática.
II. Caso a edificação tenha tubulações de amianto, o projeto deve prever a troca por tubulação de pvc, que é considerada uma prática ambientalmente correta.
III. O projeto deve apresentar o perfil isométrico da instalação hidráulica, que fornece detalhes como o diâmetro das tubulações e a quantidade e tipo de pontos hidráulicos.
IV. O projeto hidráulico só deve ser desenhado na escala de 1/75.
Após a análise das assertivas, indique a opção correta:
Concurso:
Prefeitura de Bragança - PA
Disciplina:
Direito Constitucional
A Constituição Federal condiciona o ingresso no serviço público à aprovação prévia em concurso público de provas ou de provas e títulos, conforme o artigo 37 da Constituição Federal. Indique a opção incorreta acerca do serviço público: