Questões da prova:
INSTITUTO VICENTE NELSON - 2024 - Prefeitura de Bragança - PA - Tecnologista em Saúde Pública - Arquitetura e Urbanismo de Conjuntos Arquitetônicos Históricos
limpar filtros
40 Questões de concurso encontradas
Página 1 de 8
Questões por página:
Questões por página:
Concurso:
Prefeitura de Bragança - PA
Disciplina:
Arquitetura
O Projeto Arquitetônico é composto por itens como: planta baixa, cortes, fachadas, planta de situação, locação da obra e outros, onde é feito o detalhamento da execução da obra. O componente do Projeto Arquitetônico mostrado na figura abaixo é indicado na opção:
Concurso:
Prefeitura de Bragança - PA
Disciplina:
Arquitetura
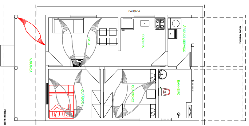
A locação dos eletrodomésticos e móveis da casa dentro do ambiente interno organizado de uma residência está exemplificado na figura abaixo. O tipo de planta da figura é indicado na opção:
Obs: Planta fora de escala
Obs: Planta fora de escala
Concurso:
Prefeitura de Bragança - PA
Disciplina:
Arquitetura
No cronograma de construção de uma fábrica temos no quadro abaixo parte do cronograma de obras e que detalha a aplicação dos recursos para a execução da 1ª etapa da obra. Baseado no quadro de execução orçamentária da obra, o valor total simples executado da obra em reais ao final da 1ª etapa:
Onde: Qn = Quantidade de serviço no mês n, em porcentagem; Mn = Valor do serviço no mês n
Onde: Qn = Quantidade de serviço no mês n, em porcentagem; Mn = Valor do serviço no mês n
Concurso:
Prefeitura de Bragança - PA
Disciplina:
Arquitetura
O Sistema Construtivo é definido como o conjunto de métodos práticos, realizando o uso organizado de materiais e mão-de-obra que são associados visando a edificação de espaços previamente programados. Em relação aos Sistemas Construtivos, analise as assertivas.
I. Não podem apresentar deformações expressivas nos elementos estruturais, trazendo insegurança e perigo aos usuários.
II. As instalações de água, esgoto, caixa d’água com estruturas e pisos devem apresentar estanqueidade.
III. Devem usar materiais que causem o menor impacto ambiental possível e implementar uma gestão de resíduos sólidos, evitando o descarte destes resíduos no meio ambiente.
IV. A Alvenaria Estrutural é um exemplo de Sistema Construtivo moderno e que usa blocos de alta resistência e que permitem acelerar a entrega da obra.
Com relação as assertivas acima, pode afirmar:
I. Não podem apresentar deformações expressivas nos elementos estruturais, trazendo insegurança e perigo aos usuários.
II. As instalações de água, esgoto, caixa d’água com estruturas e pisos devem apresentar estanqueidade.
III. Devem usar materiais que causem o menor impacto ambiental possível e implementar uma gestão de resíduos sólidos, evitando o descarte destes resíduos no meio ambiente.
IV. A Alvenaria Estrutural é um exemplo de Sistema Construtivo moderno e que usa blocos de alta resistência e que permitem acelerar a entrega da obra.
Com relação as assertivas acima, pode afirmar:
Concurso:
Prefeitura de Bragança - PA
Disciplina:
Direito Urbanístico
O Parcelamento do solo urbano é tratado pela lei 6.766/79 que poderá ser feito mediante loteamento ou desmembramento. Analise as assertivas acerca da Lei 6.766/79:
I. Considera-se lote o terreno servido de infraestrutura básica cujas dimensões atendam aos índices urbanísticos definidos pelo plano diretor ou lei municipal para a zona em que se situe.
II. A infraestrutura básica dos parcelamentos situados nas zonas habitacionais declaradas por lei como de interesse social (ZHIS) não contempla o escoamento de águas pluviais.
III. O projeto de loteamento e desmembramento deverá ser aprovado pelo Governo Municipal, para qualquer tipo de área.
IV. Não será permitido o parcelamento do solo em áreas de preservação ecológica ou naquelas onde a poluição impeça condições sanitárias suportáveis, até a sua correção.
Após a análise das assertivas acima, julgue-as:
I. Considera-se lote o terreno servido de infraestrutura básica cujas dimensões atendam aos índices urbanísticos definidos pelo plano diretor ou lei municipal para a zona em que se situe.
II. A infraestrutura básica dos parcelamentos situados nas zonas habitacionais declaradas por lei como de interesse social (ZHIS) não contempla o escoamento de águas pluviais.
III. O projeto de loteamento e desmembramento deverá ser aprovado pelo Governo Municipal, para qualquer tipo de área.
IV. Não será permitido o parcelamento do solo em áreas de preservação ecológica ou naquelas onde a poluição impeça condições sanitárias suportáveis, até a sua correção.
Após a análise das assertivas acima, julgue-as: