Questões da prova:
CONSULPLAN - 2019 - MPE-PA - Estagiário - Engenharia
limpar filtros
40 Questões de concurso encontradas
Página 1 de 8
Questões por página:
Questões por página:
Concurso:
MPE-PA
Disciplina:
Engenharia Civil
A imagem se refere a uma curva de nível, importante representação topográfica muito utilizada em projetos de estradas e pavimentação. Observe.
Sendo a cota do ponto A definida como HA e a cota do ponto B definida como HB e sabendo que a distância em linha reta entre os dois pontos é de 1 km, qual é a inclinação entre os dois pontos, aproximadamente?
Sendo a cota do ponto A definida como HA e a cota do ponto B definida como HB e sabendo que a distância em linha reta entre os dois pontos é de 1 km, qual é a inclinação entre os dois pontos, aproximadamente?
Concurso:
MPE-PA
Disciplina:
Engenharia Civil
Considere a composição de custos unitários referente à execução de 1 m² de alvenaria de tijolo maciço.
Os custos de mão de obra e de materiais para execução de 5 m² de alvenaria são, respectivamente:
Os custos de mão de obra e de materiais para execução de 5 m² de alvenaria são, respectivamente:
Concurso:
MPE-PA
Disciplina:
Engenharia Civil
A imagem apresenta um diagrama rede PERT-CPM, cujas setas representam as atividades com seus respectivos tempos de execução. Observe.
Determine, a seguir, o caminho crítico presente no diagrama.
Determine, a seguir, o caminho crítico presente no diagrama.
Concurso:
MPE-PA
Disciplina:
Engenharia Civil
A planta a seguir apresenta um esquema elétrico de uma edificação com três cômodos. Observe.
Sobre a planta apresentada, analise as afirmativas a seguir.
I. O sistema indicado pelos interruptores a é denominado Tree-Way; esses interruptores são conhecidos como interruptores intermediários. II. Todas as lâmpadas presentes na edificação apresentam a mesma potência, fazendo parte do circuito 3 (único circuito de iluminação indicado na planta). III. A seção nominal mínima para os condutores do circuito 1 e 4 é de 2,5 mm², enquanto para os circuitos 2 e 3 é de 1,50 mm². IV. Não existem circuitos bifásicos apresentados na planta elétrica.
Estão corretas apenas as afirmativas
Sobre a planta apresentada, analise as afirmativas a seguir. I. O sistema indicado pelos interruptores a é denominado Tree-Way; esses interruptores são conhecidos como interruptores intermediários. II. Todas as lâmpadas presentes na edificação apresentam a mesma potência, fazendo parte do circuito 3 (único circuito de iluminação indicado na planta). III. A seção nominal mínima para os condutores do circuito 1 e 4 é de 2,5 mm², enquanto para os circuitos 2 e 3 é de 1,50 mm². IV. Não existem circuitos bifásicos apresentados na planta elétrica.
Estão corretas apenas as afirmativas
Concurso:
MPE-PA
Disciplina:
Engenharia Civil
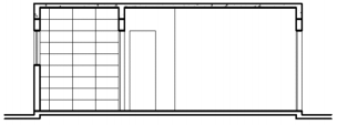
A planta baixa de uma edificação será seccionada pelo corte AA representado pela marcação a seguir.
Analisando os elementos representados, assinale a alternativa que apresenta a solução correta deste corte.
Analisando os elementos representados, assinale a alternativa que apresenta a solução correta deste corte.